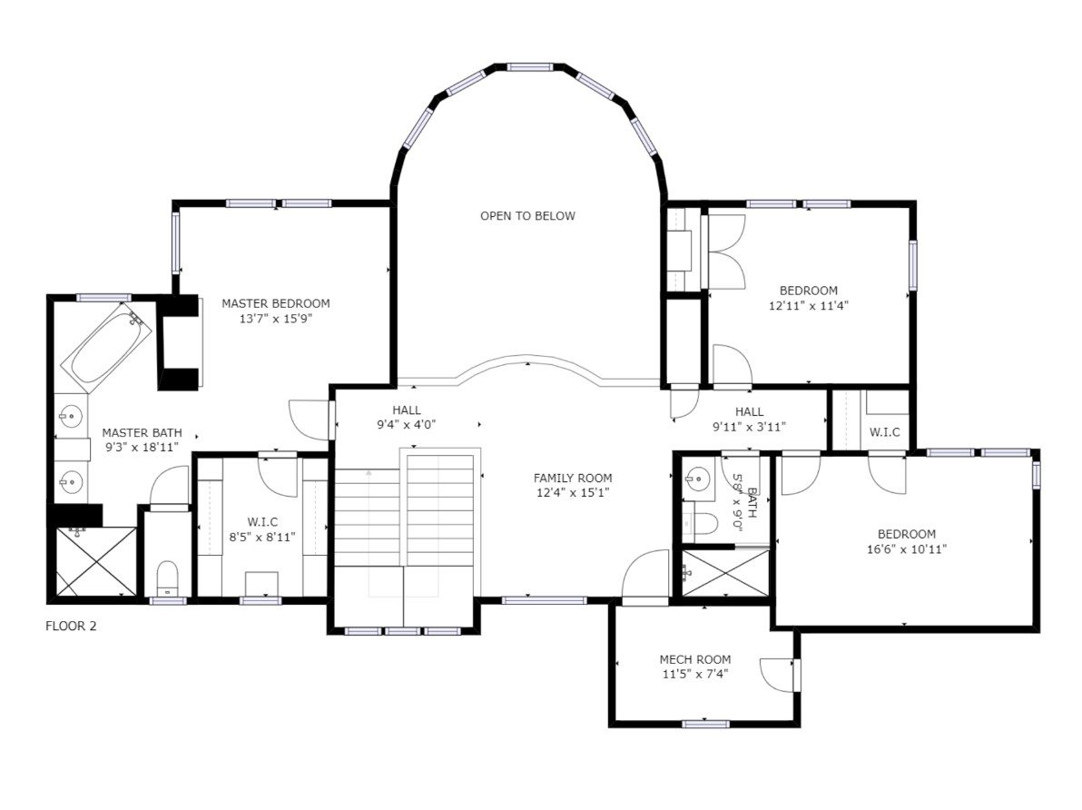
4300 Enchanted Drive – Upper Level Floorplan
Stay informed on price reductions, new homes that match your search & other insider information.
Just a few more details to get you started.